Retour

CENTUB® cône pour puits rond

Produit : A0704
Les cônes de puits CENTUB® complètent nos puits sur mesure CENTUB® éprouvés. Ils sont très résistants et donc adaptés à l’utilisation sur les routes et les autoroutes.

Dans la construction du regard, les cônes de puits CENTUB® occupent la position au-dessus des anneaux. Grâce à leur forme conique, ils rétrécissent le puits vers le haut. L’ouverture à la pointe sert d’accès au puits en cas de travaux de contrôle, d’entretien ou de réparation. Les cônes de puits CENTUB® sont adaptés aux autres éléments du puits sur mesure CENTUB® qui a fait ses preuves.

Une multitude de cônes disponibles

Vous pouvez obtenir nos cônes de puits CENTUB® résistants et durables dans les versions les plus diverses. Selon la forme de votre puits d’égout, les cônes de puits CENTUB® ronds ou les cônes de puits CENTUB® ovales adaptés sont disponibles, et ce à tout moment, car un grand nombre de cônes de puits sont disponibles dans nos entrepôts pour une livraison rapide. Indépendamment de leur forme, les éléments en béton présentent des évidements centrés ou excentrés (en position transversale ou longitudinale). Bien que les cônes de puits CENTUB® ne soient armés qu’à partir d’un diamètre de 1250 mm, tous les modèles conviennent pour des domaines d’application fortement sollicités. Ils résistent à la classe de charge D400 (utilisation sur routes et autoroutes) et répondent ainsi à des exigences élevées en matière de capacité de charge.

Des aides utiles à la pose

Lors de la réalisation d’un puits, il faut veiller à ce que la pose soit effectuée dans les règles de l’art et conformément aux exigences. En règle générale, cette opération est rapide et simple: les différents éléments d’un puits sur mesure CENTUB® sont dotés de tiges d’ancrage à tête sphérique ou de douilles d’ancrage pratiques, tout comme les cônes de puits CENTUB®. Les éléments de puits sont rapidement déplacés à l’aide d’une élingue de puits que vous pouvez louer chez nous. N’oubliez pas que lors de la construction du puits, il est impératif d’utiliser des joints glissants et des lubrifiants afin de garantir l’étanchéité du puits. Demandez conseil à nos experts en puits sur mesure CENTUB® pour la planification et la construction de puits de canalisation.
Numéro d'article
Spécification
Disponibilité
Numéro d'article
Prix CHF
Par
Groupe
Norme LE
Couleur
type
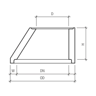
Diamètre nominal DN (mm)
Diamètre nominal DN1 (mm)
Dimension nominale de largeur pour section ovale WN (mm)
Dimension nominale de largeur pour section ovale LN (mm)
Hauteur nominale pour section ovoïde HN (mm)
Diamètre intérieur D (mm)
Diamètre intérieur d1 (mm)
Longeur L (mm)
Longeur l1 (mm)
Largeur B (mm)
Largeur b1 (mm)
Hauteur H (mm)
Hauteur h1 (mm)
Hauteur h3 (mm)
Diamètre extérieur OD (mm)
Diamètre extérieur ODm
Ouverture nominale NW (mm)
Ouverture nominale NW1
Ouverture nominale NW2
Epaisseur de paroi W (mm)
Épaisseur du fond t1
ta (mm)
tk (mm)
Épaisseur du fond T
Largeur de lumière LW (mm)
Rayon R
Classe de charge BK
Angle alpha
Angle beta
Pente de la semelle J
Classe de compétence FK
échellon
Ancre
Consommation en béton BV
Profondeur NT (mm)
Poids kg/UV
Surface
Arêtes
Ergots
Armature
Ligne de produits
Usine de production
Numéro d'article 122100
Disponibilité
Numéro d'article 122100
Prix 472.00
Par pce
Groupe AH
Norme LE SN EN 1917
Couleur
type
Diamètre nominal DN (mm) 800
Diamètre nominal DN1 (mm)
Dimension nominale de largeur pour section ovale WN (mm)
Dimension nominale de largeur pour section ovale LN (mm)
Hauteur nominale pour section ovoïde HN (mm)
Diamètre intérieur D (mm) 625
Diamètre intérieur d1 (mm)
Longeur L (mm)
Longeur l1 (mm)
Largeur B (mm)
Largeur b1 (mm)
Hauteur H (mm) 600
Hauteur h1 (mm)
Hauteur h3 (mm)
Diamètre extérieur OD (mm) 1040
Diamètre extérieur ODm
Ouverture nominale NW (mm)
Ouverture nominale NW1
Ouverture nominale NW2
Epaisseur de paroi W (mm) 120
Épaisseur du fond t1
ta (mm)
tk (mm)
Épaisseur du fond T
Largeur de lumière LW (mm)
Rayon R
Classe de charge BK
Angle alpha
Angle beta
Pente de la semelle J
Classe de compétence FK
échellon
Ancre
Consommation en béton BV
Profondeur NT (mm)
Poids kg/UV 520
Surface
Arêtes
Ergots
Armature
Ligne de produits CENTUB<sup>®</sup>
Usine de production 71
Numéro d'article 105920
Disponibilité
Numéro d'article 105920
Prix 765.00
Par pce
Groupe AH
Norme LE SN EN 1917
Couleur
type
Diamètre nominal DN (mm) 800
Diamètre nominal DN1 (mm)
Dimension nominale de largeur pour section ovale WN (mm)
Dimension nominale de largeur pour section ovale LN (mm)
Hauteur nominale pour section ovoïde HN (mm)
Diamètre intérieur D (mm) 600
Diamètre intérieur d1 (mm)
Longeur L (mm)
Longeur l1 (mm)
Largeur B (mm)
Largeur b1 (mm)
Hauteur H (mm) 600
Hauteur h1 (mm)
Hauteur h3 (mm)
Diamètre extérieur OD (mm) 1040
Diamètre extérieur ODm
Ouverture nominale NW (mm)
Ouverture nominale NW1
Ouverture nominale NW2
Epaisseur de paroi W (mm) 120
Épaisseur du fond t1
ta (mm)
tk (mm)
Épaisseur du fond T
Largeur de lumière LW (mm)
Rayon R
Classe de charge BK
Angle alpha
Angle beta
Pente de la semelle J
Classe de compétence FK
échellon
Ancre
Consommation en béton BV
Profondeur NT (mm)
Poids kg/UV 480
Surface
Arêtes
Ergots
Armature
Ligne de produits CENTUB<sup>®</sup>
Usine de production 71
Numéro d'article 120793
Disponibilité
Numéro d'article 120793
Prix 765.00
Par pce
Groupe AH
Norme LE SN EN 1917
Couleur
type
Diamètre nominal DN (mm) 800
Diamètre nominal DN1 (mm)
Dimension nominale de largeur pour section ovale WN (mm)
Dimension nominale de largeur pour section ovale LN (mm)
Hauteur nominale pour section ovoïde HN (mm)
Diamètre intérieur D (mm) 600
Diamètre intérieur d1 (mm)
Longeur L (mm)
Longeur l1 (mm)
Largeur B (mm)
Largeur b1 (mm)
Hauteur H (mm) 600
Hauteur h1 (mm)
Hauteur h3 (mm)
Diamètre extérieur OD (mm) 1040
Diamètre extérieur ODm
Ouverture nominale NW (mm)
Ouverture nominale NW1
Ouverture nominale NW2
Epaisseur de paroi W (mm) 120
Épaisseur du fond t1
ta (mm)
tk (mm)
Épaisseur du fond T
Largeur de lumière LW (mm)
Rayon R
Classe de charge BK
Angle alpha
Angle beta
Pente de la semelle J
Classe de compétence FK
échellon
Ancre
Consommation en béton BV
Profondeur NT (mm)
Poids kg/UV 515
Surface
Arêtes
Ergots
Armature
Ligne de produits CENTUB<sup>®</sup>
Usine de production 71
Numéro d'article 108170
Disponibilité
Numéro d'article 108170
Prix 555.00
Par pce
Groupe AH
Norme LE SN EN 1917
Couleur
type
Diamètre nominal DN (mm) 1000
Diamètre nominal DN1 (mm)
Dimension nominale de largeur pour section ovale WN (mm)
Dimension nominale de largeur pour section ovale LN (mm)
Hauteur nominale pour section ovoïde HN (mm)
Diamètre intérieur D (mm) 625
Diamètre intérieur d1 (mm)
Longeur L (mm)
Longeur l1 (mm)
Largeur B (mm)
Largeur b1 (mm)
Hauteur H (mm) 600
Hauteur h1 (mm)
Hauteur h3 (mm)
Diamètre extérieur OD (mm) 1240
Diamètre extérieur ODm
Ouverture nominale NW (mm)
Ouverture nominale NW1
Ouverture nominale NW2
Epaisseur de paroi W (mm) 120
Épaisseur du fond t1
ta (mm)
tk (mm)
Épaisseur du fond T
Largeur de lumière LW (mm)
Rayon R
Classe de charge BK
Angle alpha
Angle beta
Pente de la semelle J
Classe de compétence FK
échellon
Ancre
Consommation en béton BV
Profondeur NT (mm)
Poids kg/UV 645
Surface
Arêtes
Ergots
Armature
Ligne de produits CENTUB<sup>®</sup>
Usine de production 71
Numéro d'article 110963
Disponibilité
Numéro d'article 110963
Prix 615.00
Par pce
Groupe AH
Norme LE SN EN 1917
Couleur
type
Diamètre nominal DN (mm) 1200
Diamètre nominal DN1 (mm)
Dimension nominale de largeur pour section ovale WN (mm)
Dimension nominale de largeur pour section ovale LN (mm)
Hauteur nominale pour section ovoïde HN (mm)
Diamètre intérieur D (mm) 625
Diamètre intérieur d1 (mm)
Longeur L (mm)
Longeur l1 (mm)
Largeur B (mm)
Largeur b1 (mm)
Hauteur H (mm) 600
Hauteur h1 (mm)
Hauteur h3 (mm)
Diamètre extérieur OD (mm) 1470
Diamètre extérieur ODm
Ouverture nominale NW (mm)
Ouverture nominale NW1
Ouverture nominale NW2
Epaisseur de paroi W (mm) 135
Épaisseur du fond t1
ta (mm)
tk (mm)
Épaisseur du fond T
Largeur de lumière LW (mm)
Rayon R
Classe de charge BK
Angle alpha
Angle beta
Pente de la semelle J
Classe de compétence FK
échellon
Ancre
Consommation en béton BV
Profondeur NT (mm)
Poids kg/UV 725
Surface
Arêtes
Ergots
Armature
Ligne de produits CENTUB<sup>®</sup>
Usine de production 11, 71
Numéro d'article 119128
Disponibilité
Numéro d'article 119128
Prix 990.00
Par pce
Groupe AH
Norme LE SN EN 1917
Couleur
type
Diamètre nominal DN (mm) 1250
Diamètre nominal DN1 (mm)
Dimension nominale de largeur pour section ovale WN (mm)
Dimension nominale de largeur pour section ovale LN (mm)
Hauteur nominale pour section ovoïde HN (mm)
Diamètre intérieur D (mm) 600
Diamètre intérieur d1 (mm)
Longeur L (mm)
Longeur l1 (mm)
Largeur B (mm)
Largeur b1 (mm)
Hauteur H (mm) 530
Hauteur h1 (mm)
Hauteur h3 (mm)
Diamètre extérieur OD (mm) 1490
Diamètre extérieur ODm
Ouverture nominale NW (mm)
Ouverture nominale NW1
Ouverture nominale NW2
Epaisseur de paroi W (mm) 120
Épaisseur du fond t1
ta (mm)
tk (mm)
Épaisseur du fond T
Largeur de lumière LW (mm)
Rayon R
Classe de charge BK
Angle alpha
Angle beta
Pente de la semelle J
Classe de compétence FK
échellon
Ancre
Consommation en béton BV
Profondeur NT (mm)
Poids kg/UV 730
Surface
Arêtes
Ergots
Armature
Ligne de produits CENTUB<sup>®</sup>
Usine de production 11
Numéro d'article 125177
Disponibilité
Numéro d'article 125177
Prix 1'050.00
Par pce
Groupe AH
Norme LE SN EN 1917
Couleur
type
Diamètre nominal DN (mm) 1250
Diamètre nominal DN1 (mm)
Dimension nominale de largeur pour section ovale WN (mm)
Dimension nominale de largeur pour section ovale LN (mm)
Hauteur nominale pour section ovoïde HN (mm)
Diamètre intérieur D (mm) 800
Diamètre intérieur d1 (mm)
Longeur L (mm)
Longeur l1 (mm)
Largeur B (mm)
Largeur b1 (mm)
Hauteur H (mm) 530
Hauteur h1 (mm)
Hauteur h3 (mm)
Diamètre extérieur OD (mm) 1490
Diamètre extérieur ODm
Ouverture nominale NW (mm)
Ouverture nominale NW1
Ouverture nominale NW2
Epaisseur de paroi W (mm) 120
Épaisseur du fond t1
ta (mm)
tk (mm)
Épaisseur du fond T
Largeur de lumière LW (mm)
Rayon R
Classe de charge BK
Angle alpha
Angle beta
Pente de la semelle J
Classe de compétence FK
échellon
Ancre
Consommation en béton BV
Profondeur NT (mm)
Poids kg/UV 740
Surface
Arêtes
Ergots
Armature
Ligne de produits CENTUB<sup>®</sup>
Usine de production 22
Numéro d'article 113643
Disponibilité
Numéro d'article 113643
Prix 1'100.00
Par pce
Groupe AH
Norme LE
Couleur
type
Diamètre nominal DN (mm) 1500
Diamètre nominal DN1 (mm)
Dimension nominale de largeur pour section ovale WN (mm)
Dimension nominale de largeur pour section ovale LN (mm)
Hauteur nominale pour section ovoïde HN (mm)
Diamètre intérieur D (mm) 600
Diamètre intérieur d1 (mm)
Longeur L (mm)
Longeur l1 (mm)
Largeur B (mm)
Largeur b1 (mm)
Hauteur H (mm) 530
Hauteur h1 (mm)
Hauteur h3 (mm)
Diamètre extérieur OD (mm) 1740
Diamètre extérieur ODm
Ouverture nominale NW (mm)
Ouverture nominale NW1
Ouverture nominale NW2
Epaisseur de paroi W (mm) 120
Épaisseur du fond t1
ta (mm)
tk (mm)
Épaisseur du fond T
Largeur de lumière LW (mm)
Rayon R
Classe de charge BK
Angle alpha
Angle beta
Pente de la semelle J
Classe de compétence FK
échellon
Ancre
Consommation en béton BV
Profondeur NT (mm)
Poids kg/UV 970
Surface
Arêtes
Ergots
Armature
Ligne de produits CENTUB<sup>®</sup>
Usine de production 11
Numéro d'article 118591
Disponibilité
Numéro d'article 118591
Prix 1'230.00
Par pce
Groupe AH
Norme LE
Couleur
type
Diamètre nominal DN (mm) 1500
Diamètre nominal DN1 (mm)
Dimension nominale de largeur pour section ovale WN (mm)
Dimension nominale de largeur pour section ovale LN (mm)
Hauteur nominale pour section ovoïde HN (mm)
Diamètre intérieur D (mm) 800
Diamètre intérieur d1 (mm)
Longeur L (mm)
Longeur l1 (mm)
Largeur B (mm)
Largeur b1 (mm)
Hauteur H (mm) 530
Hauteur h1 (mm)
Hauteur h3 (mm)
Diamètre extérieur OD (mm) 1740
Diamètre extérieur ODm
Ouverture nominale NW (mm)
Ouverture nominale NW1
Ouverture nominale NW2
Epaisseur de paroi W (mm) 120
Épaisseur du fond t1
ta (mm)
tk (mm)
Épaisseur du fond T
Largeur de lumière LW (mm)
Rayon R
Classe de charge BK
Angle alpha
Angle beta
Pente de la semelle J
Classe de compétence FK
échellon
Ancre
Consommation en béton BV
Profondeur NT (mm)
Poids kg/UV 990
Surface
Arêtes
Ergots
Armature
Ligne de produits CENTUB<sup>®</sup>
Usine de production 11