Retour

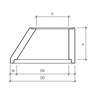
CENTUB® cône pour puits rond

Produit : A0704
Les cônes de puits CENTUB® complètent nos puits sur mesure CENTUB® éprouvés. Ils sont très résistants et donc adaptés à l’utilisation sur les routes et les autoroutes.

Dans la construction du regard, les cônes de puits CENTUB® occupent la position au-dessus des anneaux. Grâce à leur forme conique, ils rétrécissent le puits vers le haut. L’ouverture à la pointe sert d’accès au puits en cas de travaux de contrôle, d’entretien ou de réparation. Les cônes de puits CENTUB® sont adaptés aux autres éléments du puits sur mesure CENTUB® qui a fait ses preuves.

Une multitude de cônes disponibles

Vous pouvez obtenir nos cônes de puits CENTUB® résistants et durables dans les versions les plus diverses. Selon la forme de votre puits d’égout, les cônes de puits CENTUB® ronds ou les cônes de puits CENTUB® ovales adaptés sont disponibles, et ce à tout moment, car un grand nombre de cônes de puits sont disponibles dans nos entrepôts pour une livraison rapide. Indépendamment de leur forme, les éléments en béton présentent des évidements centrés ou excentrés (en position transversale ou longitudinale). Bien que les cônes de puits CENTUB® ne soient armés qu’à partir d’un diamètre de 1250 mm, tous les modèles conviennent pour des domaines d’application fortement sollicités. Ils résistent à la classe de charge D400 (utilisation sur routes et autoroutes) et répondent ainsi à des exigences élevées en matière de capacité de charge.

Des aides utiles à la pose

Lors de la réalisation d’un puits, il faut veiller à ce que la pose soit effectuée dans les règles de l’art et conformément aux exigences. En règle générale, cette opération est rapide et simple: les différents éléments d’un puits sur mesure CENTUB® sont dotés de tiges d’ancrage à tête sphérique ou de douilles d’ancrage pratiques, tout comme les cônes de puits CENTUB®. Les éléments de puits sont rapidement déplacés à l’aide d’une élingue de puits que vous pouvez louer chez nous. N’oubliez pas que lors de la construction du puits, il est impératif d’utiliser des joints glissants et des lubrifiants afin de garantir l’étanchéité du puits. Demandez conseil à nos experts en puits sur mesure CENTUB® pour la planification et la construction de puits de canalisation.
Numéro d'article
Spécification
Disponibilité
Numéro d'article
Prix CHF
Par
Groupe
Norme LE
Couleur
Angle alpha
Ancre
Angle beta
Classe de charge BK
Consommation en béton BV
Diamètre intérieur D(mm)
Longeur L (mm)
Longeur l1 (mm)
Largeur B
Diamètre intérieur d1
Largeur b1 (mm)
Diamètre nominal DN (mm)
Hauteur H (mm)
Hauteur h1 (mm)
Hauteur h3 (mm)
Diamètre nominal DN1 (mm)
Classe de compétence FK
Hauteur nominale pour section ovoïde HN (mm)
Pente de la semelle J
Dimension nominale de largeur pour section ovale LN (mm)
Largeur de lumière LW (mm)
Ouverture nominale NW (mm)
Ouverture nominale NW1
Ouverture nominale NW2
Profondeur NT (mm)
Diamètre extérieur OD (mm)
Diamètre extérieur ODm
Rayon R
échellon
Épaisseur du fond T
Épaisseur du fond t1
ta (mm)
tk (mm)
Epaisseur de paroi W (mm)
Dimension nominale de largeur pour section ovale WN (mm)
Surface
Arêtes
Ergots
Armature
type
Ligne de produits
Usine de production
Poids kg/UV
Numéro d'article 122100
Disponibilité
Numéro d'article 122100
Prix
Par pce
Groupe AH
Norme LE
Couleur
Angle alpha
Ancre
Angle beta
Classe de charge BK
Consommation en béton BV
Diamètre intérieur D(mm) 625
Longeur L (mm)
Longeur l1 (mm)
Largeur B
Diamètre intérieur d1
Largeur b1 (mm)
Diamètre nominal DN (mm) 800
Hauteur H (mm) 600
Hauteur h1 (mm)
Hauteur h3 (mm)
Diamètre nominal DN1 (mm)
Classe de compétence FK
Hauteur nominale pour section ovoïde HN (mm)
Pente de la semelle J
Dimension nominale de largeur pour section ovale LN (mm)
Largeur de lumière LW (mm)
Ouverture nominale NW (mm)
Ouverture nominale NW1
Ouverture nominale NW2
Profondeur NT (mm)
Diamètre extérieur OD (mm) 1040
Diamètre extérieur ODm
Rayon R
échellon
Épaisseur du fond T
Épaisseur du fond t1
ta (mm)
tk (mm)
Epaisseur de paroi W (mm) 120
Dimension nominale de largeur pour section ovale WN (mm)
Surface
Arêtes
Ergots
Armature
type
Ligne de produits CENTUB<sup>®</sup>
Usine de production 71
Poids kg/UV 520
Numéro d'article 105920
Disponibilité
Numéro d'article 105920
Prix
Par pce
Groupe AH
Norme LE
Couleur
Angle alpha
Ancre
Angle beta
Classe de charge BK
Consommation en béton BV
Diamètre intérieur D(mm) 600
Longeur L (mm)
Longeur l1 (mm)
Largeur B
Diamètre intérieur d1
Largeur b1 (mm)
Diamètre nominal DN (mm) 800
Hauteur H (mm) 600
Hauteur h1 (mm)
Hauteur h3 (mm)
Diamètre nominal DN1 (mm)
Classe de compétence FK
Hauteur nominale pour section ovoïde HN (mm)
Pente de la semelle J
Dimension nominale de largeur pour section ovale LN (mm)
Largeur de lumière LW (mm)
Ouverture nominale NW (mm)
Ouverture nominale NW1
Ouverture nominale NW2
Profondeur NT (mm)
Diamètre extérieur OD (mm) 1040
Diamètre extérieur ODm
Rayon R
échellon
Épaisseur du fond T
Épaisseur du fond t1
ta (mm)
tk (mm)
Epaisseur de paroi W (mm) 120
Dimension nominale de largeur pour section ovale WN (mm)
Surface
Arêtes
Ergots
Armature
type
Ligne de produits CENTUB<sup>®</sup>
Usine de production 71
Poids kg/UV 480
Numéro d'article 120793
Disponibilité
Numéro d'article 120793
Prix
Par pce
Groupe AH
Norme LE
Couleur
Angle alpha
Ancre
Angle beta
Classe de charge BK
Consommation en béton BV
Diamètre intérieur D(mm) 600
Longeur L (mm)
Longeur l1 (mm)
Largeur B
Diamètre intérieur d1
Largeur b1 (mm)
Diamètre nominal DN (mm) 800
Hauteur H (mm) 600
Hauteur h1 (mm)
Hauteur h3 (mm)
Diamètre nominal DN1 (mm)
Classe de compétence FK
Hauteur nominale pour section ovoïde HN (mm)
Pente de la semelle J
Dimension nominale de largeur pour section ovale LN (mm)
Largeur de lumière LW (mm)
Ouverture nominale NW (mm)
Ouverture nominale NW1
Ouverture nominale NW2
Profondeur NT (mm)
Diamètre extérieur OD (mm) 1040
Diamètre extérieur ODm
Rayon R
échellon
Épaisseur du fond T
Épaisseur du fond t1
ta (mm)
tk (mm)
Epaisseur de paroi W (mm) 120
Dimension nominale de largeur pour section ovale WN (mm)
Surface
Arêtes
Ergots
Armature
type
Ligne de produits CENTUB<sup>®</sup>
Usine de production 71
Poids kg/UV 515
Numéro d'article 108170
Disponibilité
Numéro d'article 108170
Prix
Par pce
Groupe AH
Norme LE
Couleur
Angle alpha
Ancre
Angle beta
Classe de charge BK
Consommation en béton BV
Diamètre intérieur D(mm) 625
Longeur L (mm)
Longeur l1 (mm)
Largeur B
Diamètre intérieur d1
Largeur b1 (mm)
Diamètre nominal DN (mm) 1000
Hauteur H (mm) 600
Hauteur h1 (mm)
Hauteur h3 (mm)
Diamètre nominal DN1 (mm)
Classe de compétence FK
Hauteur nominale pour section ovoïde HN (mm)
Pente de la semelle J
Dimension nominale de largeur pour section ovale LN (mm)
Largeur de lumière LW (mm)
Ouverture nominale NW (mm)
Ouverture nominale NW1
Ouverture nominale NW2
Profondeur NT (mm)
Diamètre extérieur OD (mm) 1240
Diamètre extérieur ODm
Rayon R
échellon
Épaisseur du fond T
Épaisseur du fond t1
ta (mm)
tk (mm)
Epaisseur de paroi W (mm) 120
Dimension nominale de largeur pour section ovale WN (mm)
Surface
Arêtes
Ergots
Armature
type
Ligne de produits CENTUB<sup>®</sup>
Usine de production 71
Poids kg/UV 645
Numéro d'article 110963
Disponibilité
Numéro d'article 110963
Prix
Par pce
Groupe AH
Norme LE
Couleur
Angle alpha
Ancre
Angle beta
Classe de charge BK
Consommation en béton BV
Diamètre intérieur D(mm) 625
Longeur L (mm)
Longeur l1 (mm)
Largeur B
Diamètre intérieur d1
Largeur b1 (mm)
Diamètre nominal DN (mm) 1200
Hauteur H (mm) 600
Hauteur h1 (mm)
Hauteur h3 (mm)
Diamètre nominal DN1 (mm)
Classe de compétence FK
Hauteur nominale pour section ovoïde HN (mm)
Pente de la semelle J
Dimension nominale de largeur pour section ovale LN (mm)
Largeur de lumière LW (mm)
Ouverture nominale NW (mm)
Ouverture nominale NW1
Ouverture nominale NW2
Profondeur NT (mm)
Diamètre extérieur OD (mm) 1470
Diamètre extérieur ODm
Rayon R
échellon
Épaisseur du fond T
Épaisseur du fond t1
ta (mm)
tk (mm)
Epaisseur de paroi W (mm) 135
Dimension nominale de largeur pour section ovale WN (mm)
Surface
Arêtes
Ergots
Armature
type
Ligne de produits CENTUB<sup>®</sup>
Usine de production 11, 71
Poids kg/UV 725
Numéro d'article 119128
Disponibilité
Numéro d'article 119128
Prix
Par pce
Groupe AH
Norme LE
Couleur
Angle alpha
Ancre
Angle beta
Classe de charge BK
Consommation en béton BV
Diamètre intérieur D(mm) 600
Longeur L (mm)
Longeur l1 (mm)
Largeur B
Diamètre intérieur d1
Largeur b1 (mm)
Diamètre nominal DN (mm) 1250
Hauteur H (mm) 530
Hauteur h1 (mm)
Hauteur h3 (mm)
Diamètre nominal DN1 (mm)
Classe de compétence FK
Hauteur nominale pour section ovoïde HN (mm)
Pente de la semelle J
Dimension nominale de largeur pour section ovale LN (mm)
Largeur de lumière LW (mm)
Ouverture nominale NW (mm)
Ouverture nominale NW1
Ouverture nominale NW2
Profondeur NT (mm)
Diamètre extérieur OD (mm) 1490
Diamètre extérieur ODm
Rayon R
échellon
Épaisseur du fond T
Épaisseur du fond t1
ta (mm)
tk (mm)
Epaisseur de paroi W (mm) 120
Dimension nominale de largeur pour section ovale WN (mm)
Surface
Arêtes
Ergots
Armature
type
Ligne de produits CENTUB<sup>®</sup>
Usine de production 11
Poids kg/UV 730
Numéro d'article 125177
Disponibilité
Numéro d'article 125177
Prix
Par pce
Groupe AH
Norme LE
Couleur
Angle alpha
Ancre
Angle beta
Classe de charge BK
Consommation en béton BV
Diamètre intérieur D(mm) 800
Longeur L (mm)
Longeur l1 (mm)
Largeur B
Diamètre intérieur d1
Largeur b1 (mm)
Diamètre nominal DN (mm) 1250
Hauteur H (mm) 530
Hauteur h1 (mm)
Hauteur h3 (mm)
Diamètre nominal DN1 (mm)
Classe de compétence FK
Hauteur nominale pour section ovoïde HN (mm)
Pente de la semelle J
Dimension nominale de largeur pour section ovale LN (mm)
Largeur de lumière LW (mm)
Ouverture nominale NW (mm)
Ouverture nominale NW1
Ouverture nominale NW2
Profondeur NT (mm)
Diamètre extérieur OD (mm) 1490
Diamètre extérieur ODm
Rayon R
échellon
Épaisseur du fond T
Épaisseur du fond t1
ta (mm)
tk (mm)
Epaisseur de paroi W (mm) 120
Dimension nominale de largeur pour section ovale WN (mm)
Surface
Arêtes
Ergots
Armature
type
Ligne de produits CENTUB<sup>®</sup>
Usine de production 22
Poids kg/UV 740
Numéro d'article 113643
Disponibilité
Numéro d'article 113643
Prix
Par pce
Groupe AH
Norme LE
Couleur
Angle alpha
Ancre
Angle beta
Classe de charge BK
Consommation en béton BV
Diamètre intérieur D(mm) 600
Longeur L (mm)
Longeur l1 (mm)
Largeur B
Diamètre intérieur d1
Largeur b1 (mm)
Diamètre nominal DN (mm) 1500
Hauteur H (mm) 530
Hauteur h1 (mm)
Hauteur h3 (mm)
Diamètre nominal DN1 (mm)
Classe de compétence FK
Hauteur nominale pour section ovoïde HN (mm)
Pente de la semelle J
Dimension nominale de largeur pour section ovale LN (mm)
Largeur de lumière LW (mm)
Ouverture nominale NW (mm)
Ouverture nominale NW1
Ouverture nominale NW2
Profondeur NT (mm)
Diamètre extérieur OD (mm) 1740
Diamètre extérieur ODm
Rayon R
échellon
Épaisseur du fond T
Épaisseur du fond t1
ta (mm)
tk (mm)
Epaisseur de paroi W (mm) 120
Dimension nominale de largeur pour section ovale WN (mm)
Surface
Arêtes
Ergots
Armature
type
Ligne de produits CENTUB<sup>®</sup>
Usine de production 11
Poids kg/UV 970
Numéro d'article 118591
Disponibilité
Numéro d'article 118591
Prix
Par pce
Groupe AH
Norme LE
Couleur
Angle alpha
Ancre
Angle beta
Classe de charge BK
Consommation en béton BV
Diamètre intérieur D(mm) 800
Longeur L (mm)
Longeur l1 (mm)
Largeur B
Diamètre intérieur d1
Largeur b1 (mm)
Diamètre nominal DN (mm) 1500
Hauteur H (mm) 530
Hauteur h1 (mm)
Hauteur h3 (mm)
Diamètre nominal DN1 (mm)
Classe de compétence FK
Hauteur nominale pour section ovoïde HN (mm)
Pente de la semelle J
Dimension nominale de largeur pour section ovale LN (mm)
Largeur de lumière LW (mm)
Ouverture nominale NW (mm)
Ouverture nominale NW1
Ouverture nominale NW2
Profondeur NT (mm)
Diamètre extérieur OD (mm) 1740
Diamètre extérieur ODm
Rayon R
échellon
Épaisseur du fond T
Épaisseur du fond t1
ta (mm)
tk (mm)
Epaisseur de paroi W (mm) 120
Dimension nominale de largeur pour section ovale WN (mm)
Surface
Arêtes
Ergots
Armature
type
Ligne de produits CENTUB<sup>®</sup>
Usine de production 11
Poids kg/UV 990